
Клапан обратный для КНС
- Надежная конструкция, проверенная временем.
- Конструкция данного вида клапанов обеспечивает простоту обслуживания и ремонтопригодность без демонтажа.
- Мы имеем возможность изготовления данных клапанов как в полнопроходном исполнении, так и впереходном варианте с одного номинального диаметра на другой.
Технические характеристики
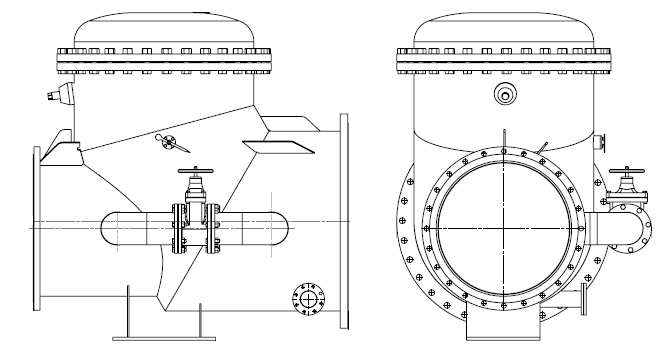
Габаритные размеры
Наименование | PN, МПа | D | L | H |
КОП.900-1200 | 1,0 | 1700 | 2070 | 2250 |
Рабочее гидравлическое давление, МПа | 1 |
Пробное гидравлическое давление, МПа | 1,5 |
Условный диаметр подводящего трубопровода, мм | 900 |
Условный диаметр отводящего трубопровода, мм | 1200 |
Потери напора на открывание клапана не более, МПа | 0,012 |
Время срабатывания, с, не более | 2,0 |
*Время срабатывания клапана указано при минимальном давлении. Фактическое время срабатывания зависит от величины рабочего давления и определяется при испытаниях системы. Схема клапана |
Особенности конструкции
Клапан обратный однодисковый поворотный с условным проходом DN900, предназначен для пропускания жидкости только в одном направлении и предупреждает обратное течение.
Клапан обратный производства ООО «Газгидроснаб» выполнен в сварном корпусе. В стандартном исполнении корпус клапана сварной выполнен из углеродистой стали с фланцевым присоединением. Диск изготавливается из углеродистой стали с износостойкой нержавеющей наплавкой в зоне уплотнения. Седло составное, с болтовым соединением, изготовлено из нержавеющей стали со встроенным сменным резиновым элементом. Болты соединения деталей седла из нержавеющей стали.
Угол положения диска относительно оси трубопровода определяется по шкале со стрелочным указателем.
Открывание клапана происходит за счет давления среды на диск при включении насоса.
Под действием скоростного потока среды диск клапана устанавливается под углом к оси трубопровода. При остановке насоса диск под действием собственного и веса противовеса начинает закрываться.